Daewoo Sens: Манжеты коленчатого вала
Замену манжет производят при наличии на рабочей кромке даже незначительных трещин или надрывов, следов отслоения от арматуры, затвердевания материала или деформации
Передняя манжета коленчатого вала
Течь масла из-под передней манжеты коленчатого вала обнаруживается по подтекам на корпусе масляного насоса.
1. Снять масляный насос (п. 2.32).
Снять манжету.
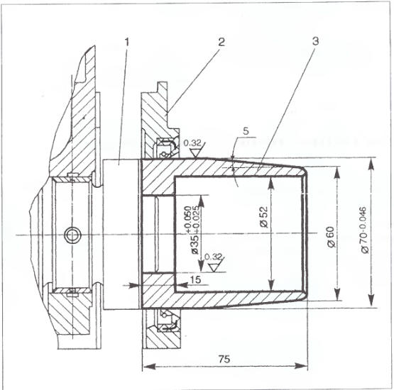
2. Не допуская перекоса, запрессовать манжету оправкой М9840-879 в корпус масляного насоса. При запрессовке манжеты проследить, чтобы не соскочили пружины (рис. 2.34.1).

Рис. 2.34.1. Запрессовка манжеты в корпус масляного насоса: 1 — оправка М9840-879;
2 - манжета; 3 - корпус масляного насоса.
3. Смазать рабочую кромку манжеты моторным маслом.
4. Установить масляный насос на двигатель и произвести сборку в обратной последовательности (п. 2.32).
Задняя манжета коленчатого вала
Течь задней манжеты коленчатого вала обнаруживается обычно при появлении масла в разъеме картера двигателя и картера сцепления или при пробуксовке сцепления.
1. Снять силовой агрегат двигателя (п. 2.2).
2. Снять кожух сцепления с нажимным диском, снять маховик (п.
2.24). Снять держатель манжеты.
Снять манжету (рис. 2.34.2).

Рис. 2.34.2. Задний конец коленчатого вала: 1 - вал коленчатый; 2 - манжета
коленчатого вала задняя; 3 - держатель манжеты; 4 - прокладка держателя; 5 - болт;
6 - маховик; 7 - шайба болтов крепления маховика; 8 - болт крепления маховика; 9
- обод зубчатый маховика; 10 — кожух защитный.
3. Не допуская перекоса, запрессовать манжету оправкой М9840-880 в держатель заднего подшипника коленчатого вала. При запрессовке манжеты проследить, чтобы не соскочили пружины (рис. 2.34.3).

Рис. 2.34.3. Запрессовка манжеты в держатель заднего подшипника коленчатого вала:
1 - оправка М9840-880; 2 - манжета; 3 - держатель.
4. Смазать рабочую кромку манжеты и оправки моторным маслом.
5. Надеть держатель с манжетой на оправку М9840-736 и, передвинув его с оправки на фланец коленчатого вала, прикрепить к блоку четырьмя болтами с пружинными шайбами (рис. 2.34.4).

Рис. 2.34.4. Установка держателя манжеты на фланец коленчатого вала: 1 -
коленчатый вал; 2 - держатель манжеты; 3 - оправка М9840-736.
6. Произвести сборку силового агрегата (п. 2.24) и установку двигателя (п 2.3).
Редукционний клапан
1. Отвернуть пробку редукционного клапана, снять прокладку, вынуть пружину и
шарик.
2. Промытьдетали и масляные каналы в корпусе масляного насоса.
3. При необходимости для плотности прилегания шар ...
Замена масла. Масляный фильтр
Рис. 2.35.1. Масляный фильтр: 1 — пружина; 2 - фильтрующий элемент перепускного
клапана; 3 - фильтрующий элемент; 4 - корпус фильтра; 5 - перепускной клапан; 6
- противодренажный клапан; 7 - про ...
Другое на сайте:
Вторичный вал коробки передач - Разборка
ПОДШИПНИК И ШЕСТЕРНЯ 4-ОЙ ПЕРЕДАЧИ
ПОРЯДОК ВЫПОЛНЕНИЯ
Используя пресс и специальное приспособление OK201 172 008 снимите шестерню
4-ой передачи.
ШЕСТЕРНИ 2-ОЙ И 3-ЕЙ ПЕРЕДАЧ
ПОРЯДОК ВЫ ...
Подбор вкладышей коренных и шатунных подшипников коленчатого вала
ПОРЯДОК ВЫПОЛНЕНИЯ 1. В первую очередь необходимо определить размерную группу
коренных и шатунных шеек коленчатого вала, т.е. выяснить имеют ли они стандартный
размер, либо подвергались проточке. ...
Электронная система управления зажиганием (и впрыском) бензиновых двигателей
- Общая информация, описание принципов функционирования и меры предосторожности
Общая информация
Система зажигания бензинового двигателя интегрирована с системой впрыска топлива
и управляется единым блоком электронного управления ECM (см. Главу Системы питания,
выпуска и ...
