Daewoo Sens: Замена масла. Масляный фильтр

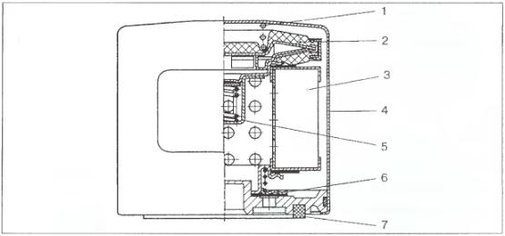
Рис. 2.35.1. Масляный фильтр: 1 — пружина; 2 - фильтрующий элемент перепускного
клапана; 3 - фильтрующий элемент; 4 - корпус фильтра; 5 - перепускной клапан; 6
- противодренажный клапан; 7 - прокладка.

Рис. 2.35.2. Снятие масляного фильтра: 1 - приспособление; 2 - масляный фильтр;
3 - картер двигателя.
1. Во время эксплуатации автомобиля уровень масла в картере двигателя поддерживайте вблизи верхней метки маслоизмерителя.
2. При проверке уровня масла автомобиль должен быть установлен на горизонтальной площадке. Наиболее правильно проверять уровень масла через 3 - 5 мин. после остановки прогретого двигателя.
3. Масло заливать в масляный картер через маслозаливную горловину, расположенную на крышке головки цилиндров. При заливке рекомендуется пользоваться воронкой с мелкой сеткой.
4. При смене масла сливать его с прогретого двигателя через отверстие, расположенное в нижней части масляного картера, предварительно отвернув сливную пробку и сняв прокладку. При этом открыть крышку маслозаливной горловины. После слива масла из картера, после пробега 45 ООО км рекомендуется промыть систему смазки двигателя, для чего завернуть сливную пробку, залить 2,5-2,75 л моющего масла и дать двигателю проработать на холостом ходу с частотой вращения коленчатого вала 950-1050 мин'^ (об/мин) в течение 10 мин.
5. Затем промывочное масло слить, заменить масляный фильтр и залить 3,45 л чистого масла. Замену масляного фильтра производят приспособлением или ключом М9811 -325 Масляный фильтр меняется после пробега автомобилем первых 5000 км, а затем после пробега каждых 10 ООО км.
6. Пустить двигатель, прогреть его и остановить через 3 - 5 минут, проверить уровень масла и при необходимости долить по верхнюю метку маслоизмерителя.
Манжеты коленчатого вала
Замену манжет производят при наличии на рабочей кромке даже незначительных трещин
или надрывов, следов отслоения от арматуры, затвердевания материала или деформации
Передняя манжета коленчатого вал ...
Система вентиляции картерных газов
1. Для промывки отсоединить шланги, снять крышку головки цилиндров и снять с
нее маслоотражатель (п. 2.5).
2. Промыть бензином или керосином шланги и маслоотражатель, а также трубку отсоса
картер ...
Другое на сайте:
Запирание дверей изнутри
Запирание дверей изнутри производится путем утапливания кнопочных выключателей
блокировки замков, встроенных сверху в нижние края оконных проемов. ...
Снятие и установка шлангов отопителя
Для снятия шлангов отопителя системы вентиляции и отопления необходимо: • Слить
частично жидкость из системы охлаждения двигателя (см.
главу «Двигатель»).
Рис. 9.22.
• Нажать на концы пружинных ...
Подшипники
Шариковые и роликовые подшипники должны быть в хорошем состоянии.
Их радиальный зазор не должен превышать 0,06 мм.
Прижав пальцами внутреннее кольцо к наружному, проворачивать одно из них в обоих
...
